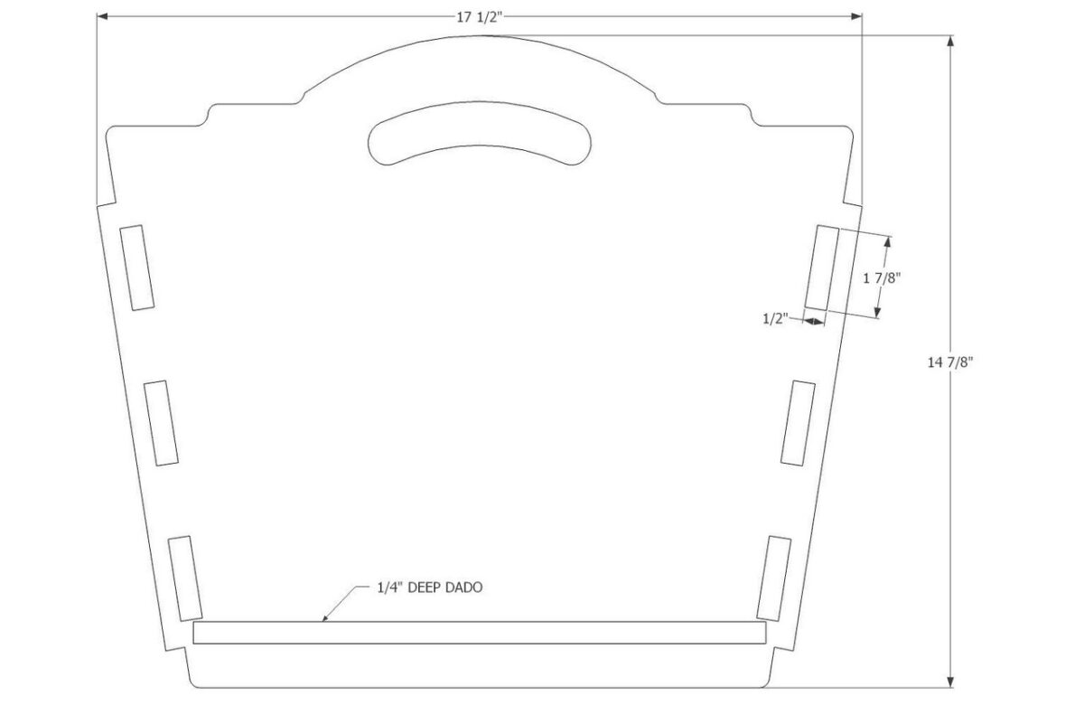
Baby Cradle – Custom Built

Leave a Reply

This site uses Akismet to reduce spam. Learn how your comment data is processed.